Downloadbereich

Hier finden Sie einige Anleitungen und Formulare zum Download.
Benötigen Sie weitere Dokumente? Fragen Sie uns gerne!

Euro Sweillem Tragfähigkeitsklassentabelle für Rohrsysteme

Datenblatt Rohrgeometrie

cover-vortrieb
cover-vortrieb-pdf

Datenblatt Vortriebsrohre

Technisches Handbuch für Steinzeug-Rohrsysteme Euro Sweillem

Technisches
Handbuch

Technisches Handbuch für Steinzeugrohrsysteme von Euro Sweillem

Technical manual for vitrified clay pipe systems (EN)

Technisches Handbuch für Steinzeug-Rohrsysteme

Manuel technique Systèmes de tuyauteries en grès (FR)

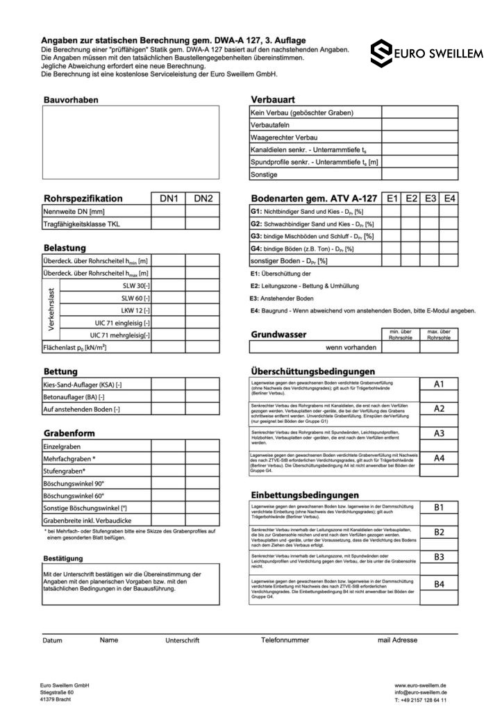
Formular für statische Rohrleitungsberechnung Euro Sweillem

Angaben zur statischen Berechnung gem. DWA-A 127, 3. Auflage

Formular zur statischen Berechnung von Vortriebsrohren

Fragebogen nach ATV-A 161
(Statische Berechnung Vortrieb)

Euro Sweillem Produktbroschüre für Steinzeugrohre

Steinzeugrohre &
Bauteile – Alle Maße

Formular zur Rückgabe von Euro Swillem Gitterboxen

Anmeldung
Gitterboxen zur Rückgabe

Row concave Shape Decorative svg added to bottom

So einfach geht’s:

Gespräch für Ihr
Projekt vereinbaren

* = Pflichtfeld